TOWER RESIDENCE A+
2 Beds · 2.5 Baths
City & Mountain View Balcony
Wet Bar and Outdoor Kitchen
Interior: 2,353 sq ft
Balcony: 687 sq ft
Total Living Area: 3,040 sq ft
TOWER RESIDENCE D
2 Beds · 2.5 Baths
City & Mountain View Balcony
Wet Bar and Outside Kitchen
Interior: 2,353 sq ft
Balcony: 687 sq ft
Total Living Area: 3,040 sq ft
TOWER RESIDENCE B
3 Beds · 4 Baths
City & Mountain View Balcony
Wet Bar and Outdoor Kitchen
Additional Mt. View Balcony
Interior: 3,365 sq ft
Balcony: 667 sq ft
Total Living Area: 4,032 sq ft
TOWER RESIDENCE C
3 Beds · 4 Baths
City & Mountain View Balcony
Wet Bar and Outdoor Kitchen
Additional Mt. View Balcony
Interior: 3,365 sq ft
Balcony: 732 sq ft
Total Living Area: 4,097 sq ft
TOWER RESIDENCE E
3 Beds · 4 Baths
City & Mountain View Balcony
Wet Bar and Outdoor Kitchen
Fire Feature
Additional Mt View Balcony
Interior: 4,326 sq ft
Balcony: 1,050 sq ft
Total Living Area: 5,376 sq ft
TOWER RESIDENCE E+
3 Beds · 4 Baths
City & Mountain View Balcony
Wet Bar and Outdoor Kitchen
Fire Feature
Additional Mt View Balcony
Interior: 4,326 sq ft
Balcony: 1,278 sq ft
Total Living Area: 5,604 sq ft
TOWER RESIDENCE A
4 Beds · 4.5 Baths
City & Mountain View Balcony
Wet Bar and Outside Kitchen
Interior: 4,199 sq ft
Balcony: 997 sq ft
Total Living Area: 5,196 sq ft
JR Penthouse A
4 Beds · 5 Baths
City & Mountain View Balcony
Wet Bar and Outdoor Kitchen
Fire Feature
Interior: 4,694 sq ft
Balcony: 1,745 sq ft
Total Living Area: 6,439 sq ft
JR Penthouse B
4 Beds · 5 Baths
City & Mountain View Balcony
Wet Bar and Outdoor Kitchen
Plunge Pool
Two Additional Mt. View Balconies
Interior: 5,035 sq ft
Balcony: 1,442 sq ft
Total Living Area: 6,477 sq ft
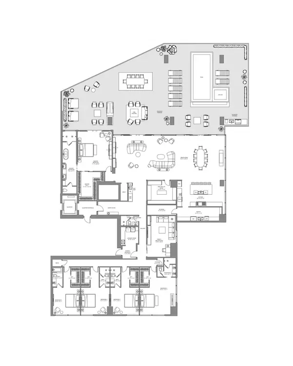
JR Penthouse C
5 Beds · 6 Baths
City & Mountain View Balcony
Jacuzzi & Full Size Pool
Fire Feature
Wet Bar and Outdoor Kitchen
Interior: 5,793 sq ft
Balcony: 2,603 sq ft
Total Living Area: 8,396 sq ft
JR Penthouse C+
5 Beds · 6 Baths
City & Mountain View Balcony
Jacuzzi & Full Size Pool
Fire Feature
Wet Bar and Outdoor Kitchen
Interior: 5,676 sq ft
Balcony: 3,657 sq ft
Total Living Area: 9,333 sq ft
Penthouse A
5 Beds · 6.5 Baths
City & Mountain View Balcony
Jacuzzi & Full Size Pool
Outdoor Kitchen & Fire Feature
Additional Mt. View Balcony
Interior: 6,454 sq ft
Balcony: 3,225 sq ft
Total Living Area: 9,679 sq ft
Penthouse B
5 Beds · 6.5 Baths
City & Mountain View Balcony
Jacuzzi & Full Size Pool
Outdoor Kitchen & Fire Feature
Additional Mt. View Balcony
Interior: 8,349 sq ft
Balcony: 3,555 sq ft
Total Living Area: 11,904 sq ft







